Showroom Suter Inox

Suter Inox a mandaté CCHE dans le cadre de l’aménagement de leur showroom en suisse romande, dans le quartier Oassis à Crissier.

L’objectif du projet était de créer un showroom à l’image de celui de Zurich avec une ‘touche’ de Romandie au travers d’une architecture moderne et conviviale. Un environnement de travail dans l’air du temps, avec une architecture intérieure attractive, un espace dédié aux client·e·s et employé·e·s qui y travaillent.

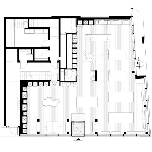
Le programme propose une nouvelle entrée centrale avec sa zone vestiaire et à proximité, les places de travail des employés pour accueillir les clients. Le savoir-faire de Suter Inox est mis en valeur à travers un espace dédié à son univers, auquel s’ajoute la zone Bora et sa Live Kitchen, la zone robinetterie et des présentoirs complétant l’offre, tandis qu’un kids corner et un espace café viennent enrichir l’expérience.

Année

2024

Développé par

CCHE Lausanne SA

Maître de l'ouvrage

Suter Inox AG

Typologie

Aménagement d'une surface brute

Programme

Showroom

Procédure

Appel d'offres

Surface (SBP)

220 m2

Volume (SIA)

1'115 m3

Réalisation

CCHE Lausanne SA

Architecture d'Intérieur de CCHE pour le Showroom Suter Inox à Crissier Suisse
Architecture d'Intérieur de CCHE pour le Showroom Suter Inox à Crissier Suisse

Plan 1:100

Architecture d'Intérieur de CCHE pour le Showroom Suter Inox à Crissier Suisse
Architecture d'Intérieur de CCHE pour le Showroom Suter Inox à Crissier Suisse
Architecture d'Intérieur de CCHE pour le Showroom Suter Inox à Crissier Suisse

Une esthétique propre

Chaque univers se différencie par des couleurs et finitions propres. Le concept d’architecture intérieure propose une couleur et une finition spécifique pour l’univers Suter et deux couleurs et finitions distinctes pour l’univers Bora. Les présentoirs possèdent également des couleurs et des finitions propres, notamment au niveau des plans de travail en inox qui mettent en valeur le savoir-faire de Suter Inox et les différentes possibilités de finition que l’entreprise offre.

Pour l’éclairage, deux types de luminaires sont utilisés. Si les spots mettent en valeur les éléments exposés à la verticale, les plafonniers qui avec leur forme ronde "animent" le plafond, mettent en avant les éléments exposés à l’horizontale. Les luminaires possèdent deux autres particularités : les caches noirs qui les rendent le plus discrets possible et les diffuseurs qui améliorent la qualité de la lumière.

Architecture d'Intérieur de CCHE pour le Showroom Suter Inox à Crissier Suisse
Architecture d'Intérieur de CCHE pour le Showroom Suter Inox à Crissier Suisse
Architecture d'Intérieur de CCHE pour le Showroom Suter Inox à Crissier Suisse
Architecture d'Intérieur de CCHE pour le Showroom Suter Inox à Crissier Suisse
Retour aux projets