Quartier La Pique

Gland

Un quartier familial favorisant les rencontres

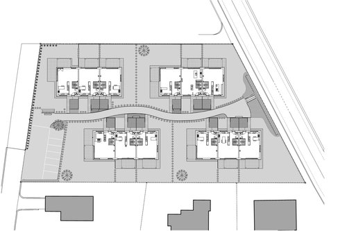
Situé au sommet d’une colline en bordure nord du vieux bourg, le nouveau quartier articule 4 volumes d’habitation le long d’un cheminement piétonnier. L’implantation en quinconce des volumes compacts permet des échappées visuelles sur Alpes et Jura pour chaque unité.

Chaque logement propose 5 pièces habitables sur un plan modulable répartie sur 3 étages. Le stationnement des véhicules privés est confiné au sous-sol afin de maximiser les aménagements extérieurs végétalisés. Les prolongements extérieurs sont soignés et accompagnés d’une terrasse couverte et d’une palissade d’entrée.

Par égard aux préoccupations énergétiques actuelles et au confort des futurs utilisateurs, la certification MINERGIE sera atteinte. Les bâtiments seront chauffés par une chaudière à bois centrale de quartier et équipés de panneaux solaires en option.

Année

2012

Développé par

CCHE Nyon SA (ex-Suard Architectes SA)

Maître de l'ouvrage

Jacques Suard

Typologie

Nouvelle construction

Programme

Construction de 12 villas contiguës MINERGIE en 4 groupes de 3 unités, avec parking souterrain

Surface (SBP)

1'776 m²

Volume (SIA)

11'192 m³

Réalisation

CCHE Nyon SA (ex-Suard Architectes SA)

Architecture de CCHE pour le Quartier La Pique à Gland Suisse
Architecture de CCHE pour le Quartier La Pique à Gland Suisse
Architecture de CCHE pour le Quartier La Pique à Gland Suisse
Architecture de CCHE pour le Quartier La Pique à Gland Suisse
Architecture de CCHE pour le Quartier La Pique à Gland Suisse
Architecture de CCHE pour le Quartier La Pique à Gland Suisse
Architecture de CCHE pour le Quartier La Pique à Gland Suisse
Architecture de CCHE pour le Quartier La Pique à Gland Suisse
Architecture de CCHE pour le Quartier La Pique à Gland Suisse
Architecture de CCHE pour le Quartier La Pique à Gland Suisse

Réalisation

Architecture de CCHE pour le Quartier La Pique à Gland Suisse
Retour aux projets