Migros Fitnessparc

Malley

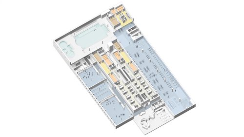
Le FitnessParc se situe dans le bâtiment multifonctionnel de Malley-Lumières, depuis son ouverture en 2001. Entre galeries commerciales, surfaces de bureaux et cinémas, le centre occupe plus de 4'000 m2.

Le projet de transformation mené par CCHE réorganise et optimise la répartition des différents espaces et clarifie les flux de circulation internes. Au final, l’espace fitness est agrandi, de même que les trois salles de cours. Le nouvel aménagement des vestiaires offre une meilleure flexibilité d’utilisation et gagne en fluidité. Saunas, hammams et espaces détente y sont intégrés. A l’étage, aux abords de la piscine, un nouvel espace wellness mixte regroupe divers équipements de bien-être.

Le projet joue avec une matérialité simple, sobre et élégante. Du blanc lumineux et épuré au noir intimiste, les nuances de gris varient et contrastent, formant un ensemble unitaire et cohérent. Les espaces sont animés par les multiples couleurs du matériel et des tenues de sport portées et misent en scène par les utilisateurs…

Le FitnessParc est resté ouvert pendant les 22 semaines de travaux.

Année

2015

Développé par

CCHE Lausanne SA

Maître de l'ouvrage

Migros Vaud société coopérative

Programme

salle de fitness, salles de cours, vestiaires, équipements wellness

Surface (SBP)

4'150 m²

Volume (SIA)

16'100 m³

Réalisation

CCHE Lausanne SA

Architecture d'intérieur pour le Migros FitnessParc de Malley Suisse
Architecture d'intérieur pour le Migros FitnessParc de Malley Suisse
Architecture d'intérieur pour le Migros FitnessParc de Malley Suisse
Architecture d'intérieur pour le Migros FitnessParc de Malley Suisse
Architecture d'intérieur pour le Migros FitnessParc de Malley Suisse
Architecture d'intérieur pour le Migros FitnessParc de Malley Suisse
Architecture d'intérieur pour le Migros FitnessParc de Malley Suisse
Architecture d'intérieur pour le Migros FitnessParc de Malley Suisse
Architecture d'intérieur pour le Migros FitnessParc de Malley Suisse
Architecture d'intérieur pour le Migros FitnessParc de Malley Suisse
Architecture d'intérieur pour le Migros FitnessParc de Malley Suisse
Retour aux projets