Schulgebäude in Pont-Rouge

Genf Lancy - Pont Rouge

Das Projekt „Au fil des Saisons“, der erste Preis eines Wettbewerbs, schlug vor, die Schule in einem Lernpark einzurichten, der Natur und Kultur in einem engen und innovativen Umfeld verbindet.

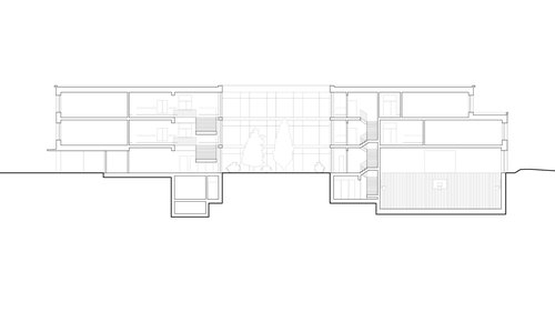
Die Schule befindet sich zwischen zwei kontrastierenden Kontexten, dem städtischen und dem landschaftlichen, dem mineralischen und dem pflanzlichen, und wird als eine Einheit vorgeschlagen, die im selben Park wie das Rathaus liegt. Dieser bedeutende öffentliche Raum wird so zum Herz und zur Lunge eines sehr dichten Stadtteils und verbindet ihn mit den anderen Sektoren der Stadt Lancy. Die ursprüngliche topographische Verbindung wird durch eine sanft abfallende Wiese, die das Rathaus mit der neuen Schule verbindet, wieder hergestellt. Der Grundgedanke des Vorschlags bestand darin, den Park in eine Schule umzuwandeln. Das Äußere und das Innere verschmelzen miteinander und verwandeln die Schule in einen „Lernpark“, in dem sich Natur und Kultur in einer engen und innovativen Umgebung begegnen.

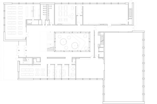
Die Lage des Gebäudes im nordwestlichen Teil des Perimeters bietet einen großzügigen Landschaftsraum, in dem sich im Osten die Fußgängerbrücke über das Tal und im Süden der Sportplatz und der Park befinden. Die Präsenz vieler Bäume sorgt für eine kühle Zone, die für den gesamten Standort vorteilhaft ist. Der Haupteingang zur Schule und zu den außerschulischen Aktivitäten erfolgt über einen überdachten Vorplatz im Süden des Gebäudes, in einer Abfolge von Außenschulhof - überdachter Schulhof - Eingang.

Das Schulprojekt entsteht um den „Kern“ des Lernens herum, der sich in der Mitte des Gebäudes befindet. Diese Oase frischer Vegetation umfasst den Ankunftsbereich der Schule, Verbindungen zwischen den Stockwerken und direkte Ausblicke auf die Sporthalle, den Speisesaal, den Rhythmikraum und die Klassenzimmer. Dieser Kern verleiht dem Raum eine helle und lebhafte Qualität und gliedert ihn gleichzeitig in eine Reihe klar definierter Zonen. Es ist dafür gedacht, in einer von den Lehrern leicht überschaubaren Atmosphäre den Kleinkindern das Gärtnern beizubringen. Ein Raum, der Sonne, Tageslicht und Pflanzen in das Herz des Gebäudes einlädt und die Natur zum zentralen Element der Raumerfahrung werden lässt.

Jahr

2023

Erwähnung

1. Preis

Entwickelt von

CCHE Lausanne SA
CCHE Genève SA
CCHE Porto Lda

Bauherr

Stadt Lancy

Programm

Realisierung der Schulhälfte, des Mehrzweck- und Quartierraums

Geschossfläche (BGF)

5'990 m2

Volumen (SIA)

21.961 m3

Zusammenarbeit

2M ingénierie civile SA
ARFOLIA SA
Estia SA
ISI sàrl Ingénierie et Sécurité Incendie

Beschilderung

CCHE Design

Künstlerische Arbeit

Pauline Cordier, Werk « Variations »

Architecture de CCHE pour l'école de Pont-Rouge à Lancy Genève Suisse

Eine urbane Form im Dialog mit dem Park

Die Schule von Lancy ist von verschiedenen Kontexten umgeben: der sehr dichten städtischen Umgebung der Wohnviertel und der grünen und natürlichen Lunge des Rathausparks.

Die sanfte und natürliche Erweiterung des bestehenden grünen Parks des Rathauses valorisiert und bestätigt die Möglichkeit, eine Schule mit reichhaltigen Programm zu planen und öffnet den Weg für neue Ansätze, um die Lernfähigkeit und den Lernwillen der Kinder zu stimulieren. Durch die Integration von Lernen und Landschaft in einem bietet dieses Projekt Kindern die Möglichkeit, in einem kompletten Ökosystem zu spielen und zu lernen, das sich im Laufe der Zeit verändert - im Laufe eines Tages, aber auch im Laufe der Jahreszeiten. Die Organisation des Projekts macht es möglich, das Schulprogramm klar vom Quartiersprogramm zu unterscheiden, um den reibungslosen Ablauf und die Sicherheit der Einrichtung zu gewährleisten.

Architecture de CCHE pour l'école de Pont-Rouge à Lancy Genève Suisse
Architecture de CCHE pour l'école de Pont-Rouge à Lancy Genève Suisse
Architecture de CCHE pour l'école de Pont-Rouge à Lancy Genève Suisse
Architecture de CCHE pour l'école de Pont-Rouge à Lancy Genève Suisse
Architecture de CCHE pour l'école de Pont-Rouge à Lancy Genève Suisse
Architecture de CCHE pour l'école de Pont-Rouge à Lancy Genève Suisse
Architecture de CCHE pour l'école de Pont-Rouge à Lancy Genève Suisse
Architecture de CCHE pour l'école de Pont-Rouge à Lancy Genève Suisse
Architecture de CCHE pour l'école de Pont-Rouge à Lancy Genève Suisse
Architecture de CCHE pour l'école de Pont-Rouge à Lancy Genève Suisse
Architecture de CCHE pour l'école de Pont-Rouge à Lancy Genève Suisse
Architecture de CCHE pour l'école de Pont-Rouge à Lancy Genève Suisse

Beschilderung

Die für das Gebäude entwickelte Beschilderung wurde aus der Untersuchung der am Standort vorhandenen Materialitäten abgeleitet. Die charakteristischen Elemente eines Schulgebäudes wurden von ihrer ursprünglichen Bestimmung entfremdet und in das Orientierungskonzept integriert, so dass es für Besucher implizit erkennbar ist und gleichzeitig unauffällig genug ist, um in den Augen der gewöhnlichen Nutzer mit der Umgebung zu verschmelzen.

Signalétique de CCHE pour l'école de Pont-Rouge à Lancy Genève Suisse
Architecture de CCHE pour l'école de Pont-Rouge à Lancy Genève Suisse
Architecture de CCHE pour l'école de Pont-Rouge à Lancy Genève Suisse

Die Beschilderung fügt sich so auf kohärente Weise in das Gesamtbild ein, indem beispielsweise Linoleum auf Korkbasis für die Beschilderungselemente verwendet wird.

Architecture de CCHE pour l'école de Pont-Rouge à Lancy Genève Suisse
Architecture de CCHE pour l'école de Pont-Rouge à Lancy Genève Suisse
Architecture de CCHE pour l'école de Pont-Rouge à Lancy Genève Suisse
Architecture de CCHE pour l'école de Pont-Rouge à Lancy Genève Suisse
Architecture de CCHE pour l'école de Pont-Rouge à Lancy Genève Suisse
Architecture de CCHE pour l'école de Pont-Rouge à Lancy Genève Suisse
Architecture de CCHE pour l'école de Pont-Rouge à Lancy Genève Suisse
Architecture de CCHE pour l'école de Pont-Rouge à Lancy Genève Suisse
Architecture de CCHE pour l'école de Pont-Rouge à Lancy Genève Suisse
Architecture de CCHE pour l'école de Pont-Rouge à Lancy Genève Suisse
Architecture de CCHE pour l'école de Pont-Rouge à Lancy Genève Suisse
Architecture de CCHE pour l'école de Pont-Rouge à Lancy Genève Suisse
Architecture de CCHE pour l'école de Pont-Rouge à Lancy Genève Suisse
Architecture de CCHE pour l'école de Pont-Rouge à Lancy Genève Suisse
Architecture de CCHE pour l'école de Pont-Rouge à Lancy Genève Suisse
Architecture de CCHE pour l'école de Pont-Rouge à Lancy Genève Suisse

Wettbewerb

Architecture de CCHE pour l'école de Pont-Rouge à Lancy Genève Suisse
Architecture de CCHE pour l'école de Pont-Rouge à Lancy Genève Suisse
Architecture de CCHE pour l'école de Pont-Rouge à Lancy Genève Suisse
Architecture de CCHE pour l'école de Pont-Rouge à Lancy Genève Suisse
Architecture de CCHE pour l'école de Pont-Rouge à Lancy Genève Suisse
Architecture de CCHE pour l'école de Pont-Rouge à Lancy Genève Suisse
Zurück zu Projekte