Chamblandes 39

Pully

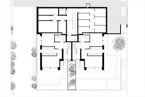
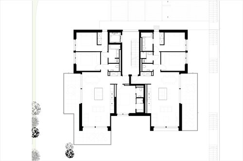
Ce projet de deux immeubles d'habitation s'inscrit sur une parcelle richement arborée offrant un beau panorama sur le Léman. La forte déclivité du terrain a fait de l'accès au bâtiment aval un challenge et un fil conducteur dans le développement du projet. Les deux volumes sont disposés de manière à s'insérer parfaitement dans le tissu bâti environnant. La structure des bâtiments permet une grande diversité d'appartements allant du 3,5 pièces au 5,5 pièces en duplex.

Chaque appartement est conçu comme une villa et en offre les qualités sans les inconvénients. Une attention particulière a été prêtée à la continuité entre intérieurs et extérieurs en appliquant les principes de "l'indoor-outdoor space" cher à l'architecture moderne californienne. Les revêtements de sols et de murs, les cuisines et les cheminées semblent traverser sans peine les grandes baies vitrées pour se poursuivre à l'extérieur. Les balcons, généreux, découpés en plusieurs sous-espaces et ponctués de patios végétalisés s'apparentent davantage à des jardins.

Malgré une densification de la parcelle, il était fondamental d'en préserver sa dimension paysagère. La disposition des bâtiments en amont a permis de garder quelques grands arbres et d'en planter de nouveaux pour créer un poumon vert dans la partie basse. En plus d'offrir un réel agrément au quartier, ce parc est un refuge pour la biodiversité et un passage sûr pour la petite faune.

Année

En cours

Développé par

CCHE Lausanne SA
CCHE La Vallée SA

Maître de l'ouvrage

Client privé

Typologie

Quartier d'habitation

Programme

Logement collectif

Procédure

Appel d'offres

Surface (SBP)

2'743 m2

Volume (SIA)

8'149 m3

Architecture de CCHE pour Chamblandes 39 Suisse
Architecture de CCHE pour Chamblandes 39 Suisse
Architecture de CCHE pour Chamblandes 39 Suisse
Architecture de CCHE pour Chamblandes 39 Suisse
Architecture de CCHE pour Chamblandes 39 Suisse
Architecture de CCHE pour Chamblandes 39 Suisse
Architecture de CCHE pour Chamblandes 39 Suisse
Architecture de CCHE pour Chamblandes 39 Suisse
Architecture de CCHE pour Chamblandes 39 Suisse
Architecture de CCHE pour Chamblandes 39 Suisse
Architecture de CCHE pour Chamblandes 39 Suisse
Architecture de CCHE pour Chamblandes 39 Suisse
Architecture de CCHE pour Chamblandes 39 Suisse

Plans

Architecture de CCHE pour Chamblandes 39 Suisse
Architecture de CCHE pour Chamblandes 39 Suisse
Architecture de CCHE pour Chamblandes 39 Suisse
Architecture de CCHE pour Chamblandes 39 Suisse
Architecture de CCHE pour Chamblandes 39 Suisse
Architecture de CCHE pour Chamblandes 39 Suisse
Architecture de CCHE pour Chamblandes 39 Suisse

Images 3D du projet architectural

Architecture de CCHE pour Chamblandes 39 Suisse
Architecture de CCHE pour Chamblandes 39 Suisse
Architecture de CCHE pour Chamblandes 39 Suisse
Architecture de CCHE pour Chamblandes 39 Suisse
Retour aux projets