Chamblandes 39

Pully

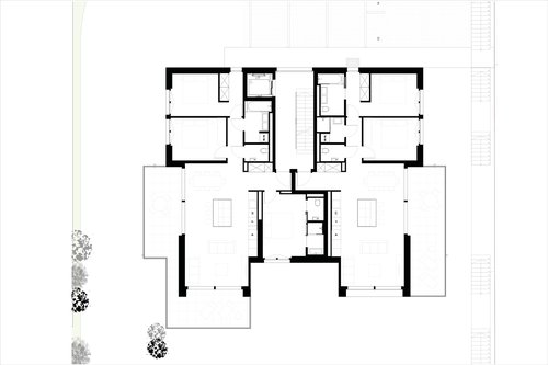
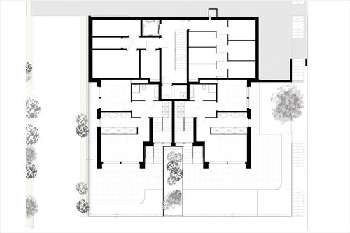
Dieses Projekt von zwei Wohngebäuden befindet sich auf einem Grundstück mit reichem Baumbestand und einem schönen Panorama auf den Genfersee. Das starke Gefälle des Geländes machte den Zugang zum talseitigen Gebäude zu einer Herausforderung und dem Leitgedanken bei der Projektentwicklung. Beide Volumen sind so angeordnet, dass sie sich nahtlos in die umliegende Bausubstanz einfügen. Die Struktur der Gebäude ermöglicht eine große Vielfalt an Wohnungen, von 3,5-Zimmer-Wohnungen bis hin zu 5,5-Zimmer-Maisonette-Wohnungen.

Jede Wohnung ist wie eine Villa gestaltet und bietet deren Vorzüge ohne deren Nachteile. Besondere Aufmerksamkeit wurde der Kontinuität zwischen Innen- und Außenräumen gewidmet, indem die Prinzipien des „indoor-outdoor space“, die in der modernen kalifornischen Architektur so beliebt sind, angewendet wurden. Boden- und Wandbeläge, Küchen und Kamine scheinen mühelos durch die großen Fenster zu gehen und sich im Freien fortzusetzen. Die großzügigen Balkone, die in mehrere Unterbereiche unterteilt und von begrünten Innenhöfen unterbrochen sind, ähneln eher Gärten.

Trotz einer Verdichtung des Grundstücks war es von grundlegender Bedeutung, seine landschaftliche Dimension zu erhalten. Durch die Anordnung der Gebäude am Hang konnten einige große Bäume erhalten und neue gepflanzt werden, um im unteren Teil eine grüne Lunge zu schaffen. Dieser Park bietet nicht nur eine echte Annehmlichkeit für die Nachbarschaft, sondern ist auch ein Refugium für die biologische Vielfalt und ein sicherer Durchgang für Kleintiere.

Jahr

Im Bau

Entwickelt von

CCHE Lausanne SA
CCHE La Vallée SA

Bauherr

Privatkunde

Typologie

Mehrfamilienhaus

Programm

Kollektive Unterkunft

Verfahren

Ausschreibung

Geschossfläche (BGF)

2.743 qm

Volumen (SIA)

8.149 m3

Architecture de CCHE pour Chamblandes 39 Suisse
Architecture de CCHE pour Chamblandes 39 Suisse
Architecture de CCHE pour Chamblandes 39 Suisse
Architecture de CCHE pour Chamblandes 39 Suisse
Architecture de CCHE pour Chamblandes 39 Suisse
Architecture de CCHE pour Chamblandes 39 Suisse
Architecture de CCHE pour Chamblandes 39 Suisse
Architecture de CCHE pour Chamblandes 39 Suisse
Architecture de CCHE pour Chamblandes 39 Suisse
Architecture de CCHE pour Chamblandes 39 Suisse
Architecture de CCHE pour Chamblandes 39 Suisse
Architecture de CCHE pour Chamblandes 39 Suisse
Architecture de CCHE pour Chamblandes 39 Suisse

Plans

Architecture de CCHE pour Chamblandes 39 Suisse
Architecture de CCHE pour Chamblandes 39 Suisse
Architecture de CCHE pour Chamblandes 39 Suisse
Architecture de CCHE pour Chamblandes 39 Suisse
Architecture de CCHE pour Chamblandes 39 Suisse
Architecture de CCHE pour Chamblandes 39 Suisse
Architecture de CCHE pour Chamblandes 39 Suisse

3D-Bild des Architekturprojekts

Architecture de CCHE pour Chamblandes 39 Suisse
Architecture de CCHE pour Chamblandes 39 Suisse
Architecture de CCHE pour Chamblandes 39 Suisse
Architecture de CCHE pour Chamblandes 39 Suisse
Zurück zu Projekte