Les Jardins de Prilly

Prilly

Nestled in a thriving neighborhood in Prilly, the "Les Jardins de Prilly" project is situated on an undeveloped plot, offering an ideal blend of tranquility and accessibility. This residential project includes an underground parking garage with civil defense shelters, 16 owner-occupied apartments, and 3 LUP (subsidized) apartments.

Owned by a family business, this project emphasizes sustainability and ease of maintenance. Each ground-floor apartment has its own garden, while the middle floors feature loggias and the upper floors boast large terraces, providing every resident with a private outdoor space.

This architectural project highlights spacious common areas characterized by the use of Type 4 raw concrete, powder-coated metal, and wood. Special attention was given to the loggias, where wood plays a central role while being protected from the elements, creating the impression of carving into the building’s interior to form an outdoor space.

Certified Minergie-P, "Les Jardins de Prilly" combines sustainability, comfort, and modernity to create an ideal living environment. Thanks to superior insulation and guaranteed airtightness, it ensures maximum energy efficiency and an optimal indoor climate.

Developed by

CCHE Lausanne SA

Client

PFAMAS Sàrl

Procedure

Direct Commission

Typology

Residential

Program

19 owner-occupied and subsidized (LUP) apartments, parking, cellars, civil defense shelters

Floor area (GFA)

1,944 m²

Volume (SIA)

10,373 m³

Realization

Perspectives Construction SA

Architecture de CCHE pour les jardin de Prilly à Lausanne
Architecture de CCHE pour les jardin de Prilly à Lausanne

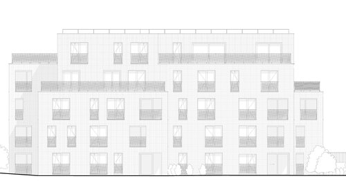
East facade

Architecture de CCHE pour les jardin de Prilly à Lausanne
Architecture de CCHE pour les jardin de Prilly à Lausanne

South and north facades

Architecture de CCHE pour les jardin de Prilly à Lausanne

Longitudinal section

Architecture de CCHE pour les jardin de Prilly à Lausanne
Architecture de CCHE pour les jardin de Prilly à Lausanne

Plans of the ground floor and third floor

Back to projects