Le Brit

Romanel-sur-Lausanne

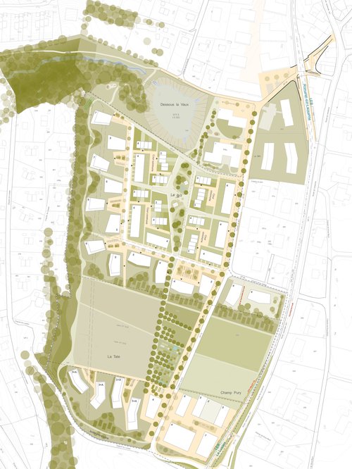
SEED eco-neighbourhood built around an agripark

The Le Brit eco-neighbourhood in Romanel-sur-Lausanne was developed using the SEED neighbourhood label status, with in-house support from our certified integrator, guaranteeing sustainable construction and operation. By combining environmentally-friendly housing, a local agricultural area, a business park, and green spaces, the Le Brit district, with its 650 new homes, promotes a pleasant living environment which is respectful to the planet.

To satisfy different lifestyle aspirations, we have applied our socio-spatial strategy methodology. As a result, we have been able to integrate a variety of morphologies - grouped housing, blocks, radiating plots

The neighbourhood project, winner of the 2006 urban planning competition, is organised around a 4.5-hectare agri-park which links the northern and southern sectors. Local agriculture and recreational gardens are run by the neighbourhood farm, enabling Brit residents to eat locally, and come together. Complementing the uses of the agri-parc, allotment gardens have been created along the boundary to provide a transition between the residential buildings.

The respect and care demonstrated when creating the public spaces and landscaping is a guarantee of the district’s quality of life. It is the result of our culture of collaboration, which, throughout the development process, has brought together our skills as urban planners, geographers, architects, and landscape architects.

Year

2016

Mention

1st prize

Procedure

Selective procedure competition

Developed by

CCHE Lausanne SA

Client

Implenia SA

Typology

Housing estate

Program

Housing, Activities, Agroparc

Floor area (GFA)

90,000 m2

Volume (SIA)

270,000 m3

Zoning

Medium-density residential

Area

142,560 m²

Density

UHI 0.6

Assignment

Masterplan

Collaboration

Urbaplan SA
Ecoscan SA
Transitec SA

Urbanisme de CCHE pour le projet de l'Eco quartier Le Brit Suisse
Urbanisme de CCHE pour le projet de l'Eco quartier Le Brit Suisse
Urbanisme de CCHE pour le projet de l'Eco quartier Le Brit Suisse
Urbanisme de CCHE pour le projet de l'Eco quartier Le Brit Suisse
Urbanisme de CCHE pour le projet de l'Eco quartier Le Brit Suisse
  1. structuring of public spaces, 2. green space types, 3. structuring of buildings
Urbanisme de CCHE pour le projet de l'Eco quartier Le Brit Suisse

Methodology: Socio-spatial strategy

Socio-spatial strategy: identifying the target public for a housing project and designing an area with them in mind. How do you identify the target public for a project and come up with a design to accommodate their needs?

Example with three distinctive lifestyles:

  1. Young dynamic couple

"As a couple, we were looking for a place to live that was close to nature, but also within easy reach of the city for our work. The BRIT district allows us to combine restaurants and outings with friends in Lausanne, while giving us the opportunity to do some sport and go for long walks with our dog at the weekend. It's also an area that we think is perfect for starting a family in the future."

2. Father of a family

"As a father to my little girl for 4 years, I had very little time to devote to her when we lived in the city; I was always busy or distracted by something. That's why, after more than 20 years in Lausanne, my wife and I decided to move to a "siedlung" in the BRI."

3. Retired woman

"My husband had to be admitted to the Donatella Mauri EMS (Emergency Medical Services). The car journeys to visit him became too dangerous for me. I decided to leave my house in Romanel to settle in a protected apartment in the BRIT district. I feel alive again! This rediscovered proximity allows us to take walks in the forest any time we want. What a joy it is to watch the children having fun in the park. This cohabitation solution reassures us; we feel less alone yet safer."

Urbanisme de CCHE pour le projet de l'Eco quartier Le Brit Suisse
Urbanisme de CCHE pour le projet de l'Eco quartier Le Brit Suisse
Urbanisme de CCHE pour le projet de l'Eco quartier Le Brit Suisse
  1. Young dynamic couple, 2. Father, 3. Retired woman
Back to projects