Three new buildings at the Marly Innovation Centre

22.03.2023 · News

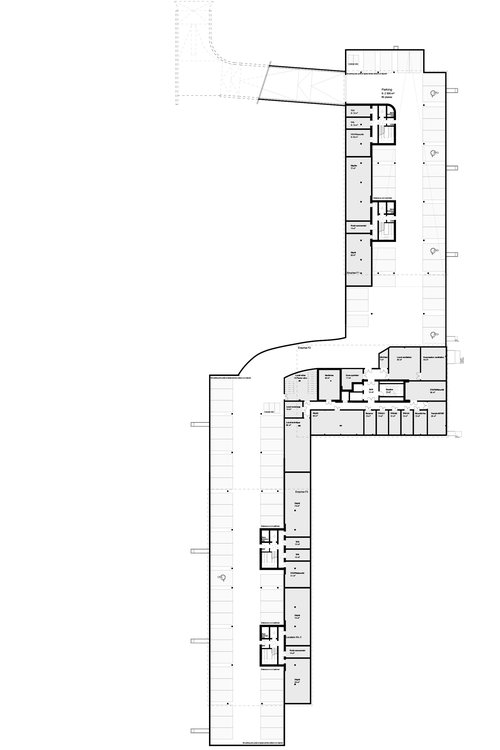
The Marly Innovation Centre is continuing its development with three new buildings. Developed by the Magizan-CCHE consortium, which is already heading up the design and construction of the eco-district, these buildings will house a training centre, administrative offices, and a 13-storey hotel (ground floor + 12 floors) with 167 rooms. The whole project is centred around a large public area with trees and plants, offering several permeabilities for the sustainable mobility network. It also offers different possibilities for use and relaxation. Each building opens onto the outside areas through a covered portico. All these porticoes accompany and emphasise the north-south sustainable mobility axis.

In the long term, this district, which offers a new way of living and working, should create up to 1,500 jobs and offer accommodation for 2,300 inhabitants.

Press review

La Liberté, A 4-star hotel in the pipeline for Marly

Architecture de CCHE pour le Secteur F du quartier de l'Ancienne Papeterie à Marly Suisse

Axonométrie

Architecture de CCHE pour le Secteur F du quartier de l'Ancienne Papeterie à Marly Suisse
Architecture de CCHE pour le Secteur F du quartier de l'Ancienne Papeterie à Marly Suisse
Architecture de CCHE pour le Secteur F du quartier de l'Ancienne Papeterie à Marly Suisse
Architecture de CCHE pour le Secteur F du quartier de l'Ancienne Papeterie à Marly Suisse
Architecture de CCHE pour le Secteur F du quartier de l'Ancienne Papeterie à Marly Suisse
Architecture de CCHE pour le Secteur F du quartier de l'Ancienne Papeterie à Marly Suisse
Back to the News