Petit Mont-Riond

Lausanne

Zusammenleben und Geselligkeit

Im resolut städtischen Kontext des Unterbahnhofsviertels in Lausanne empfangen seit April 2015 2 neue Wohngebäude ihre Bewohner.

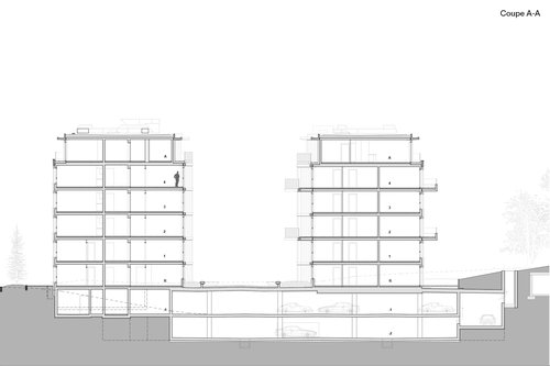
Da sich auf dem Gelände ein Wohngebäude mit 64 Wohnungen aus den 1960er Jahren befand, war es unerlässlich, die Interventionsstrategie im Vorfeld sorgfältig zu überdenken. Nachdem festgestellt wurde, dass sich das Gebäude in einem überalterten Zustand befand, Studien über die Möglichkeiten eines Um- und Ausbaus durchgeführt und ein Sozialplan für den Umzug der Mieter im Falle eines Abbruchs erstellt worden war, wurde im Einvernehmen mit den städtischen und kantonalen Behörden die Entscheidung für einen Neubau getroffen. Dadurch hat sich das Wohnflächenpotenzial mehr als verdoppelt, wobei kontrollierte Mieten in Höhe des Äquivalents der bestehenden Wohnfläche garantiert werden.

Die gesamte Konstruktion entspricht dem Minergie-Standard und wurde nach Abschluss der Arbeiten zertifiziert.

Jahr

2015

Entwickelt von

CCHE Lausanne SA

Bauherr

Petit Mont-Riond SA, Ein Unternehmen der Gruppe MOBIMO

Programm

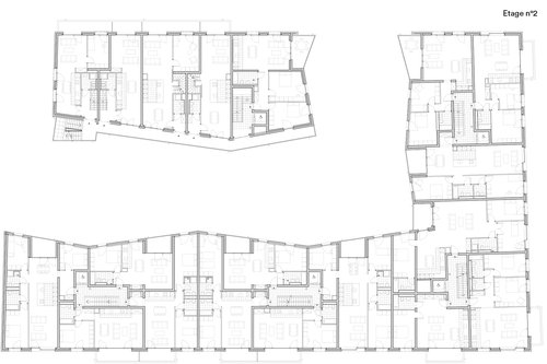
98 Wohnungen, Tiefgarage mit 106 Plätzen

Geschossfläche (BGF)

11.000 qm

Volumen (SIA)

49.000 m³

Realisierung

CCHE Lausanne SA

Künstlerische Arbeit

ZARIC

Architecture de CCHE des bâtiment de logements du Petit Mont-Riond Suisse

Alle Bewohner genießen sowohl die städtische Atmosphäre des Viertels als auch die Ruhe eines nah gelegenen kommunalen Parks. Besonderes Augenmerk wurde auf die Beziehung des Projekts zu seiner Umgebung gelegt. Großzügige Öffnungen im Gebäude lassen diese beiden komplementären Atmosphären bis ins Zentrum des Komplexes vordringen. Indem sie mit einer verputzten Außenfassade die Fluchten und die Architektursprache der umliegenden Gebäude aufgreifen, fügen sich die Gebäude harmonisch in die mineralische Umgebung des Viertels ein.

Architecture de CCHE des bâtiment de logements du Petit Mont-Riond Suisse

Auf der Hofseite war es unser Bestreben, einen lebendigen, warmen und geselligen Ort zu schaffen und ihn zum Hauptelement des Projekts zu machen. In der Tat ist es die Entdeckung einer „neuen Welt“, die sich den Menschen beim Durchschreiten der Hauptpassage bietet und die durch einen Unterschied sowohl in der Geometrie als auch in der Materialität empfunden wird. Die Orthogonalität der Außenfassade wurde durch leichte Schrägen ersetzt, um eine zu starre Verkleidung zu vermeiden und das Gefühl einer Ausdehnung des Hofes zu vermitteln.

Architecture de CCHE des bâtiment de logements du Petit Mont-Riond Suisse
Architecture de CCHE des bâtiment de logements du Petit Mont-Riond Suisse
Architecture de CCHE des bâtiment de logements du Petit Mont-Riond Suisse
Statues de l'artiste Zaric pour le projet des bâtiment de logements du Petit Mont-Riond de CCHE Suisse
Statues de l'artiste Zaric pour le projet des bâtiment de logements du Petit Mont-Riond de CCHE Suisse
Statues de l'artiste Zaric pour le projet des bâtiment de logements du Petit Mont-Riond de CCHE Suisse

Dieser warme und freundliche Treffpunkt, der von Werken des Bildhauers Zaric belebt wird, trägt zur Schaffung sozialer Bindungen und des Zugehörigkeitsgefühls zwischen Nachbarn bei.

Architecture d'intérieur de CCHE des bâtiment de logements du Petit Mont-Riond Suisse
Architecture d'intérieur de CCHE des bâtiment de logements du Petit Mont-Riond Suisse

Die 98 Wohnungen des Komplexes sind um einen gemeinsamen Innenhof ausschließlich für Fußgänger angelegt. Er dient als Ort der Begegnung und trägt zur Schaffung sozialer Bindungen und eines Gefühls der Zugehörigkeit zwischen Nachbarn bei. Die Vielfalt der Wohnungen in Bezug auf Größe und Typ (Maisonetten, Lofts, durchgehende Wohnungen) begünstigt einen sozialen und generationsübergreifenden Mix sowie eine optimale Sonneneinstrahlung in den Wohnungen.

Architecture d'intérieur de CCHE des bâtiment de logements du Petit Mont-Riond Suisse
Architecture d'intérieur de CCHE des bâtiment de logements du Petit Mont-Riond Suisse
Architecture d'intérieur de CCHE des bâtiment de logements du Petit Mont-Riond Suisse
Architecture d'intérieur de CCHE des bâtiment de logements du Petit Mont-Riond Suisse
Architecture d'intérieur de CCHE des bâtiment de logements du Petit Mont-Riond Suisse
Architecture d'intérieur de CCHE des bâtiment de logements du Petit Mont-Riond Suisse

Für die Materialität der hinterlüfteten Fassade fiel die Wahl auf eine Verkleidung mit natureloxiertem Aluminium wegen der Haltbarkeit und Langlebigkeit, wegen der Möglichkeiten der „Anpassung“ an die Projektidee und vor allem wegen der Dynamik und außergewöhnlichen ästhetischen Tiefe.

Design de CCHE pour Petit Mont-Riond Suisse

Design

Fassadenanimation mit einem Muster von in Metallbleche gestanzten Blättern, die die allgemeine Wahrnehmung des Ganzen besänftigen, indem sie ein Spiel von Licht und Schatten erzeugen: ein Detail im Dienste der Identität des Ortes.

Zurück zu Projekte