Les Planches

Epalinges

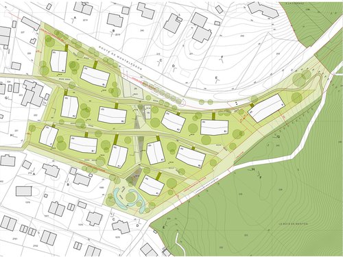
Das Hauptziel dieses von GeFiswiss organisierten Wettbewerbs, der auf Einladung durchgeführt wird, besteht darin, einen neues Viertel in Epalinges vorzuschlagen, ein Mehrfamilien-Wohnort, der auf einer harmonischen Verbindung mit dem bestehenden Stadtteil und auf der Annahme eines häuslichen Maßstabs beruht, sowohl was die Form und die Implantation als auch die Gestaltung der Außenbereiche betrifft.

Jahr

2012 - Im Bau

Erwähnung

1.Preis

Entwickelt von

CCHE Lausanne SA

Bauherr

GeFIswiss SA

Programm

Wettbewerb, Vorbereitung des Generalplans und Einhaltung des Bebauungsplans, Entwurfsstudien, Bauplan, Vorbereitung von Ausschreibungsplänen, Ausführung zu definieren

Architecture de CCHE pour le quartier Les Planches Suisse
Architecture de CCHE pour le quartier Les Planches Suisse
Architecture de CCHE pour le quartier Les Planches Suisse
Architecture de CCHE pour le quartier Les Planches Suisse
Architecture de CCHE pour le quartier Les Planches Suisse
Architecture de CCHE pour le quartier Les Planches Suisse

Schnitt C 1/200

Architecture de CCHE pour le quartier Les Planches Suisse

Schnitt D 1/200

Architecture de CCHE pour le quartier Les Planches Suisse

Grundriss

Zurück zu Projekte