La Golisse

Le Sentier

Zwischen dem Dorf Le Sentier und dem Lac de Joux gelegen, genießt das Projekt eine privilegierte Lage inmitten der Natur und in der Nähe des Ortskerns. Die Wohnungen bieten schöne Grünflächen in einem ruhigen und grünen Lebensumfeld und verfügen über einen atemberaubenden Blick auf die Landschaft des Vallée de Joux.

Nur wenige Schritte vom Bahnhof Le Solliat - La Golisse entfernt, besteht das Projekt aus einem Komplex von 14 Wohnungen und einem Erdgeschoss, das Platz für 4 Aktivitäten bietet.

Das im Herzen des Grundstücks angesiedelte Volumen ist so angeordnet, dass es sich perfekt in die umliegende Bausubstanz einfügt und so die Straße definiert. Die Abtrennung vom ehemaligen Wohngebäude, das an dieses angrenzt, ermöglicht jeder Wohnung, eine doppelte Ausrichtung zu genießen und einen schönen Lichteinfall zu bieten. Die Typologien der Wohnungen sind vielfältig und reichen von 1,5 Zimmern bis zu 4,5 Zimmern, so dass den unterschiedlichen Erwartungen der Bewohner entsprochen werden kann.

Im Bestreben diese Wohnungen im Laufe der Zeit modulierbar zu machen, können die 4,5-Zimmer- und 1,5-Zimmer-Wohnungen so umgebaut werden, dass sie zu 5,5-Zimmer-Wohnungen mit Elternsuite werden. Jede Wohnung verfügt über einen Abstellraum/Waschküche, einen Raum, der für Telearbeit eingerichtet werden kann, sowie einen Keller, der im Untergeschoss auf der Ebene der Tiefgarage zugänglich ist.

Jahr

Im Bau

Entwickelt von

CCHE La Vallée SA

Bauherr

ASTIER

Typologie

1,5- bis 4,5-Zimmer-Wohnungen mit Aktivitäten im Erdgeschoss.

Programm

14 Wohnungen und 4 Aktivitäten im Erdgeschoss

Verfahren

Direktauftrag

Geschossfläche (BGF)

2.208 m2

Volumen (SIA)

7.222 m3

Realisierung

CCHE La Vallée SA

Architecture de CCHE pour La Golisse au Sentier Suisse

Die Dachgeschosswohnungen lassen in den Wohnzimmern die Holzstruktur des Dachstuhls durchscheinen und verleihen der Wohnung einen einzigartigen Charakter. Der Einbau von großen Dachfenstern in den Elternschlafzimmern verleiht den Nachtbereichen eine schöne Deckenhöhe und einen freien Blick auf die Landschaft des Tals.

Das Gebäude fügt sich perfekt in die umliegende Umgebung ein. Die Architektur dieses Projekts orientiert sich an der traditionellen Wohnsprache des Vallée de Joux. Die Fensterlaibungen, die durch einen von den Fassaden abweichenden Putzfarbton gekennzeichnet sind, erinnern an die traditionellen Fenstereinfassungen aus Quadersteinen.

Nachhaltige Entwicklung

Die Beziehung zwischen der Architektur, der Landschaft und dem Gebiet des Vallée stehen im Mittelpunkt des architektonischen Projekts. Die vom Risoud-Wald gesäumte Residenz bietet Lebensräume, die von Natur und Grünflächen umgeben sind. Die Integration von Balkonen aus lokalem Holz an den Giebelfassaden bereichert diesen Dialog, indem sie eine Verlängerung des Innenraums nach außen bietet.

Besondere Aufmerksamkeit wird auch der Nutzung der in der Nähe des Bauorts verfügbaren natürlichen Ressourcen und dem Energieverbrauch des Gebäudes gewidmet. Die technischen Anlagen sind mit der Installation von Photovoltaik- und Wärmepaneelen und durch die Wahl eines Pellet-Heizsystems ein integraler Bestandteil davon.

Der große Vorteil der Lage des Gebäudes ermöglicht auch die Förderung der sanften Mobilität, da zahlreiche überdachte und nicht überdachte Fahrradstellplätze zur Verfügung stehen. Die unmittelbare Nähe zum Bahnhof Le Solliat - La Golisse und die Lage im Herzen des Ortes erleichtern die Fortbewegung mit geringen ökologischen Auswirkungen.

Architecture de CCHE pour La Golisse au Sentier Suisse
Architecture de CCHE pour La Golisse au Sentier Suisse
Architecture de CCHE pour La Golisse au Sentier Suisse
Architecture de CCHE pour La Golisse au Sentier Suisse
Architecture de CCHE pour La Golisse au Sentier Suisse

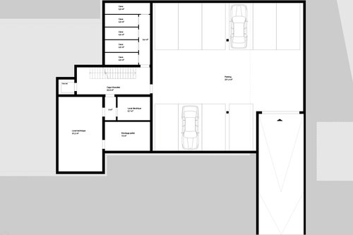
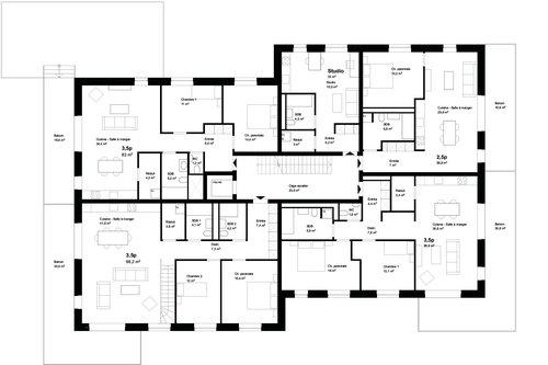
Grundrisse der Stockwerke: Dachgeschoss, 2. Stock, 1. Stock, Erdgeschoss, Untergeschoss

Zurück zu Projekte