Plein Sud

Begnins

Exemple de collaboration régionale grâce à l'appui de 13 communes, le projet répond à un besoin de logements adaptés aux personnes âgées.

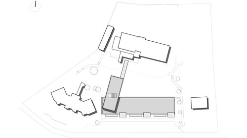
L’immeuble est situé dans un quartier résidentiel calme, à seulement 3 minutes à pied du centre et en relation directe avec l’EMS Bellevue.
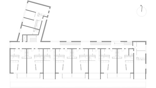
Implanté dans une forte pente, le projet tire parti du contexte environnemental par le jeu de 2 volumes encastrés :
- Le corps principal parallèle à la pente regroupe les appartements mono-orientés plein sud. Son gabarit est limité en hauteur pour dégager la vue depuis l’EMS Bellevue.
- Le volume secondaire perpendiculaire, occupé par différents locaux de services, crée la liaison avec l’EMS. Au dernier niveau, la grande salle commune équipée d’une cuisine bénéficie du magnifique panorama sur le lac.

Les appartements mono-orientés au sud offrent aussi un dégagement visuel maximum par le biais de grandes ouvertures. Pour certains d’entre eux, des fenêtres fixes donnant sur le couloir nord offrent aux locataires un contact accru avec cet espace communautaire. Adaptés aux personnes âgées, sans barrières architecturales, ils sont pourvus de cuisines et sanitaires adaptables pour les personnes à mobilité réduite.

La façade sud est étudiée de manière à trouver un doux équilibre entre l’échelle du bâtiment et le tissu villageois, la volumétrie des balcons et leur composition réduisant l’impact du corps principal.

Jahr

2014

Entwickelt von

CCHE Nyon SA (ex-Suard-CCHE Architecture SA)

Bauherr

Plein Sud Begnins SA

Typologie

Construction

Programm

28 appartements de 1,5 à 3,5 pièces, grande salle commune, salon de coiffure, physiothérapie, parking

Geschossfläche (BGF)

3'879 m²

Volumen (SIA)

12'148 m³

Zusammenarbeit

Jean-Pierre Friedli

Realisierung

CCHE Nyon SA (ex-Suard-CCHE Architecture SA)

Architecture de CCHE pour le Quartier d'habitation Plein Sud à Begnins Suisse
Architecture de CCHE pour le Quartier d'habitation Plein Sud à Begnins Suisse
Architecture de CCHE pour le Quartier d'habitation Plein Sud à Begnins Suisse
Architecture de CCHE pour le Quartier d'habitation Plein Sud à Begnins Suisse
Architecture de CCHE pour le Quartier d'habitation Plein Sud à Begnins Suisse
Architecture de CCHE pour le Quartier d'habitation Plein Sud à Begnins Suisse
Architecture de CCHE pour le Quartier d'habitation Plein Sud à Begnins Suisse
Architecture de CCHE pour le Quartier d'habitation Plein Sud à Begnins Suisse
Architecture de CCHE pour le Quartier d'habitation Plein Sud à Begnins Suisse
Zurück zu Projekte