Le Forum des Atmosphères : un nouvel espace hybride au cœur du Quartier de l'Étang

28.05.2025 · Actualités

Le Quartier de l'Étang à Vernier poursuit sa métamorphose avec le Forum des Atmosphères, un espace novateur conçu pour être le véritable épicentre de vie du quartier.

Né d’une collaboration entre les architectes d’intérieur de CCHE et le maître d’ouvrage Urban Project SA, ce projet donne vie à un espace hybride mêlant un hall d'accueil d'un immeuble administratif, espaces de travail informel, espaces partagés et événements.

Inspiré des lobbys d’hôtels

Implanté dans le bâtiment "Les Atmosphères" au Quartier de l’Étang, le Forum s’inspire des lobbys d’hôtels contemporains pour offrir un lieu vivant, chaleureux et propice aux échanges. Conçu comme le véritable cœur du site, il conjugue convivialité, adaptabilité et qualité d’usage.

Actualité de CCHE pour le forum les atmosphères
Actualité de CCHE pour le forum les atmosphères
Actualité de CCHE pour le forum les atmosphères
Actualité de CCHE pour le forum les atmosphères

Des espaces modulables et reconfigurables

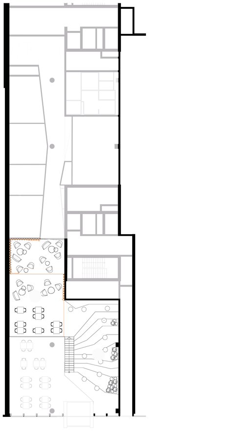
L’aménagement s’organise autour de trois zones principales : un café accessible au public, des salles de réunion privatisables et un espace événementiel entièrement modulable. Élément central de la composition spatiale, un gradin sur mesure structure le lieu tout en proposant des assises polyvalentes, idéales pour une pause, une présentation ou des discussions spontanées.

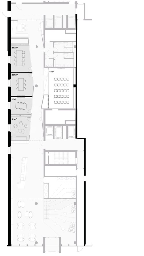
Surplombant l’ensemble, une mezzanine abrite un espace lounge à l’ambiance plus intimiste. Cette extension verticale enrichit l’atmosphère du lieu et optimise les surfaces disponibles.

Conçu pour s’adapter aux usages évolutifs, l’ensemble des espaces se veut modulable et reconfigurable. Cette flexibilité favorise une appropriation fluide et personnalisée du lieu, sans compromettre la forte identité qui le caractérise.

Actualité de CCHE pour le forum les atmosphères

Rez-de-chaussée : espace polyvalent

Actualité de CCHE pour le forum les atmosphères

1er étage : espace mezzanine

Actualité de CCHE pour le forum les atmosphères
Actualité de CCHE pour le forum les atmosphères

Rez-de-chaussée : espace polyvalent et 1er étage : espace mezzanine

Actualité de CCHE pour le forum les atmosphères

Soin particulier au choix des matériaux

Un soin particulier a été apporté au choix des matériaux et à la qualité acoustique : panneaux absorbants verticaux, murs en pegboard, faïences texturées et sol en terrazzo s’allient pour créer un environnement à la fois fonctionnel et esthétique.

Retour aux actualités